Сборник схем электрооборудования Ford Scorpio. Все схемы в хорошем качестве. Показаны основные модули - коммутатор зажигания; блок контроля скорости движения; диагностические разъемы; контакт включающий стоп-сигналы; лампа контроля неисправности КСУД (на комбинации приборов); датчик контролирующий положение дроссельной заслонки и другие. Увеличить размер электросхемы нужного узла можно кликнув на картинку. Материал предназначен для самостоятельного ремонта и текущего обслуживания автомобиля Ford Scorpio. Вторую часть сборника схем Форд Скорпио смотрите тут.
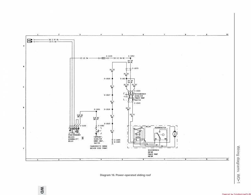
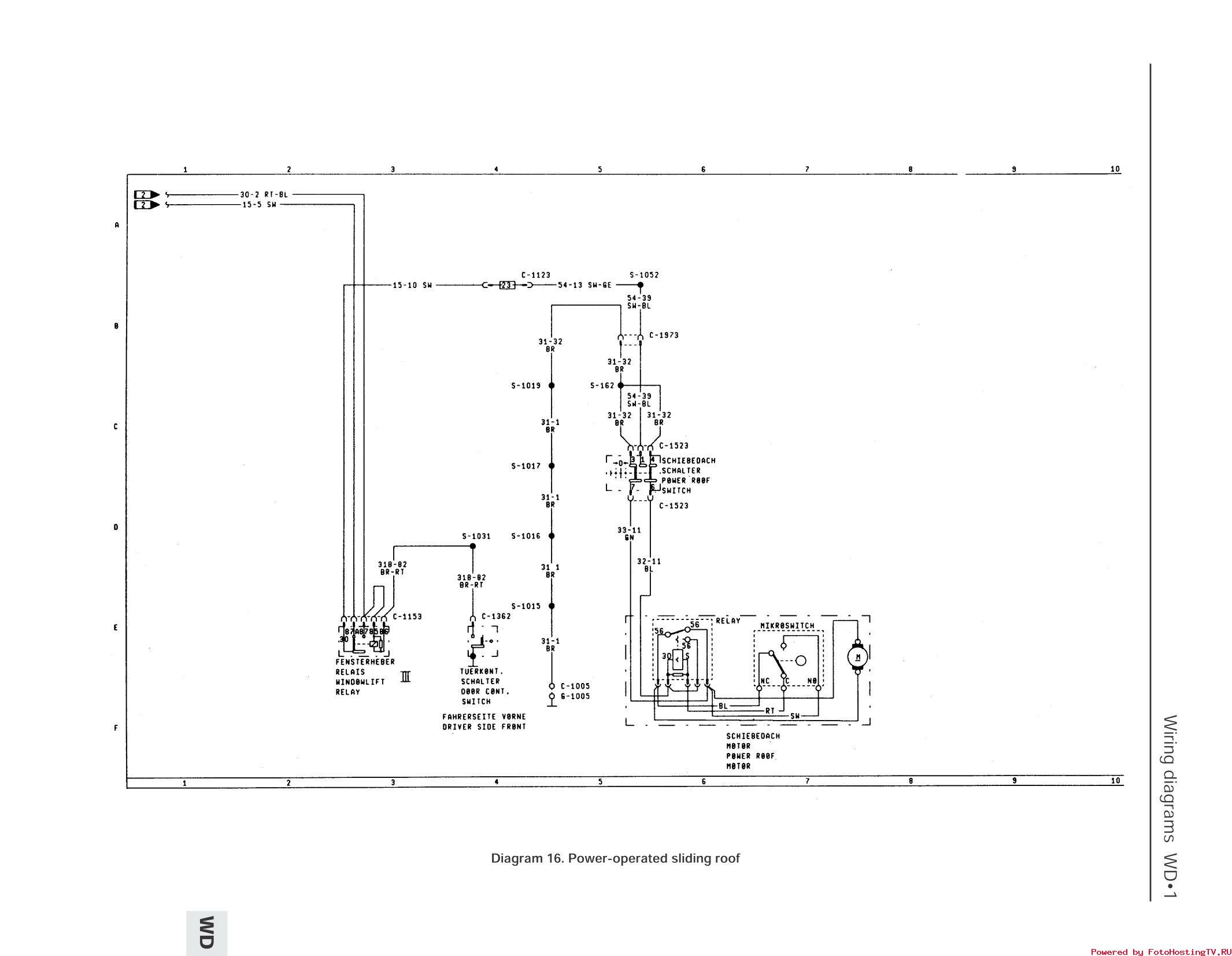
Электросхема управления питанием раздвижной крыши Ford Scorpio

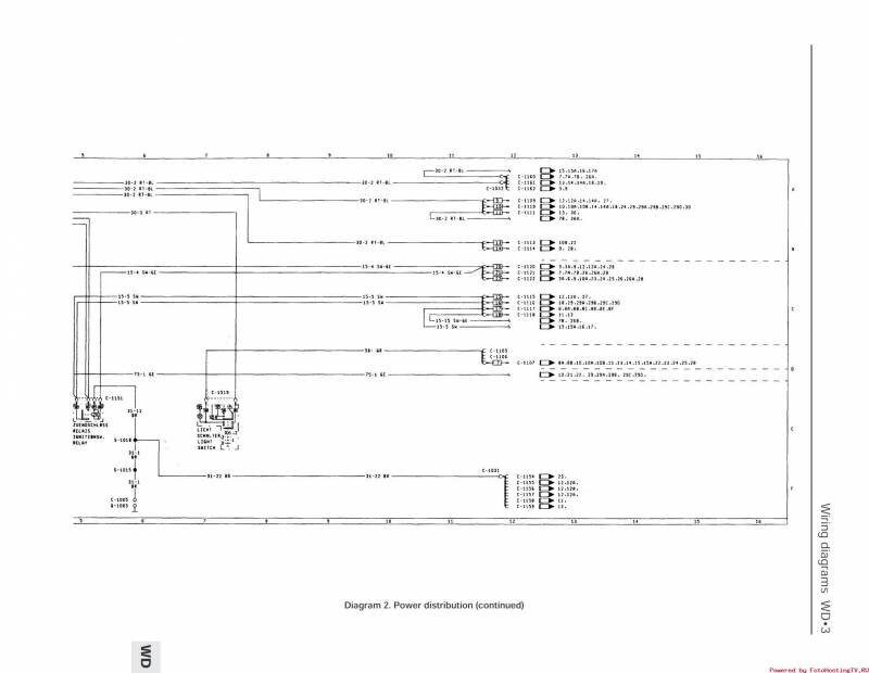
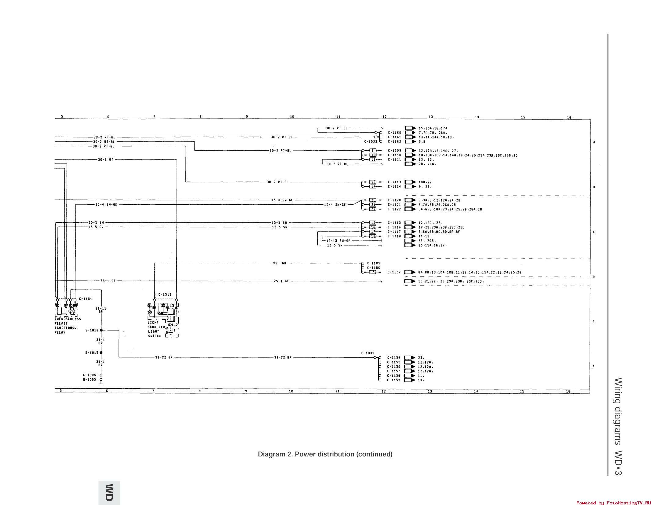
Схема питания и управления авто

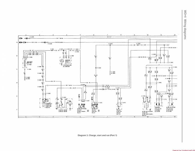
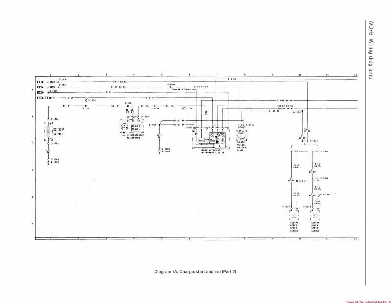
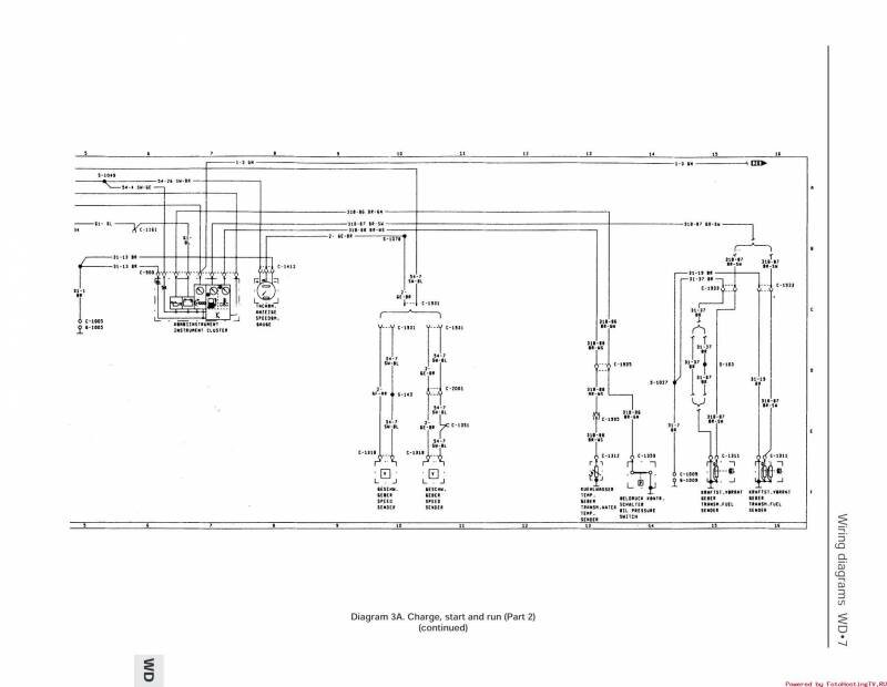
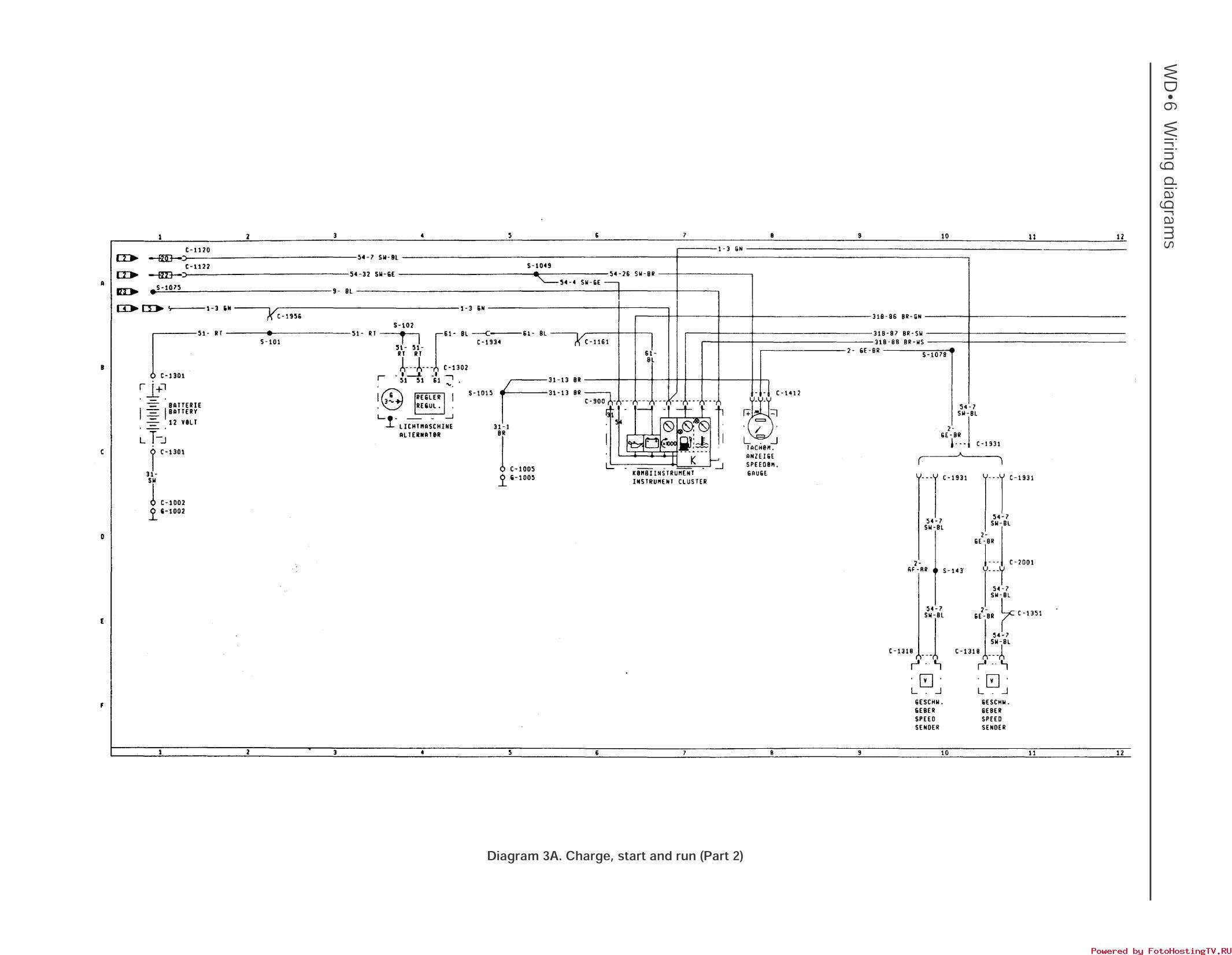
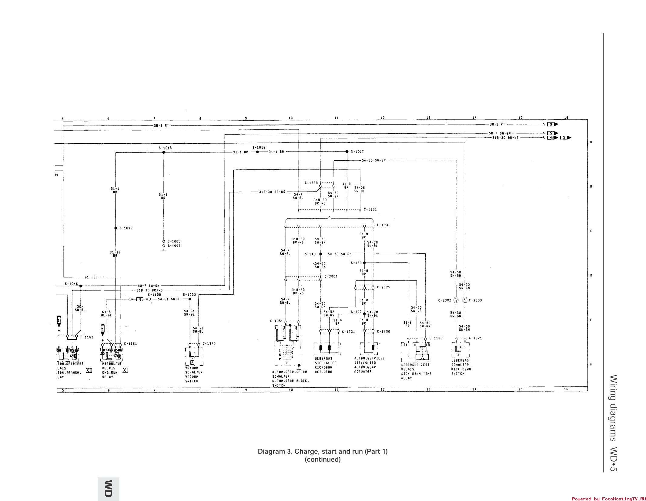
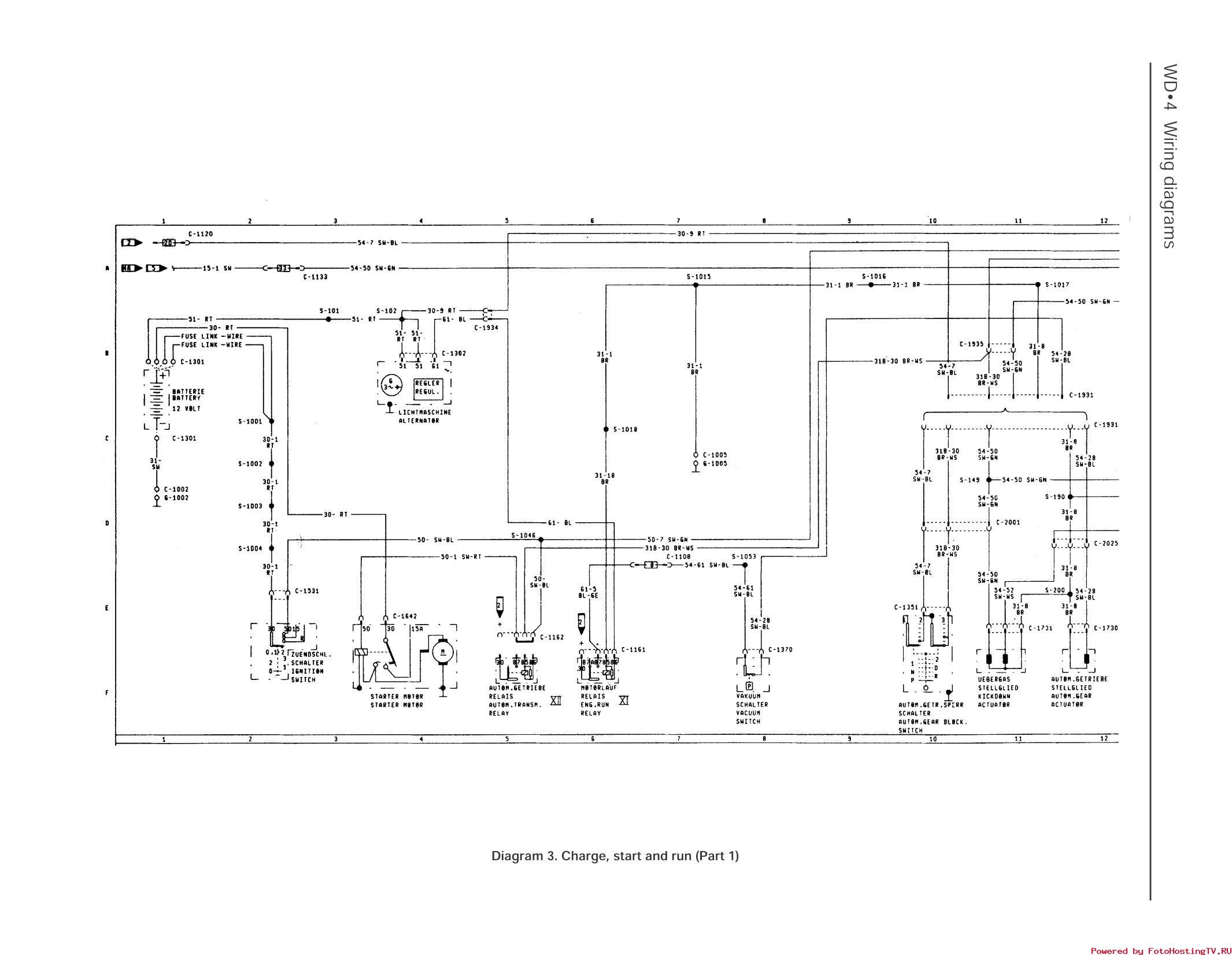
Зарядка, запуск и старт двигателя Ford Scorpio




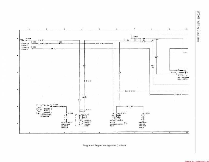
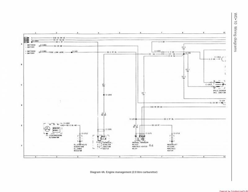
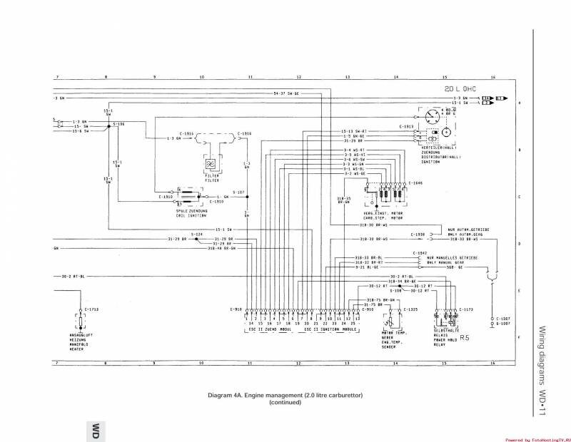
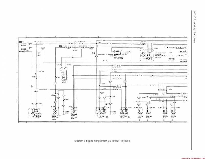
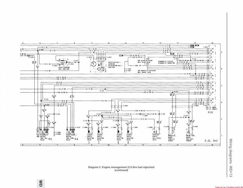
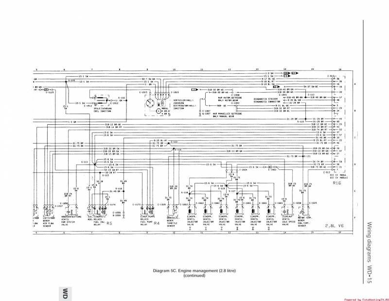
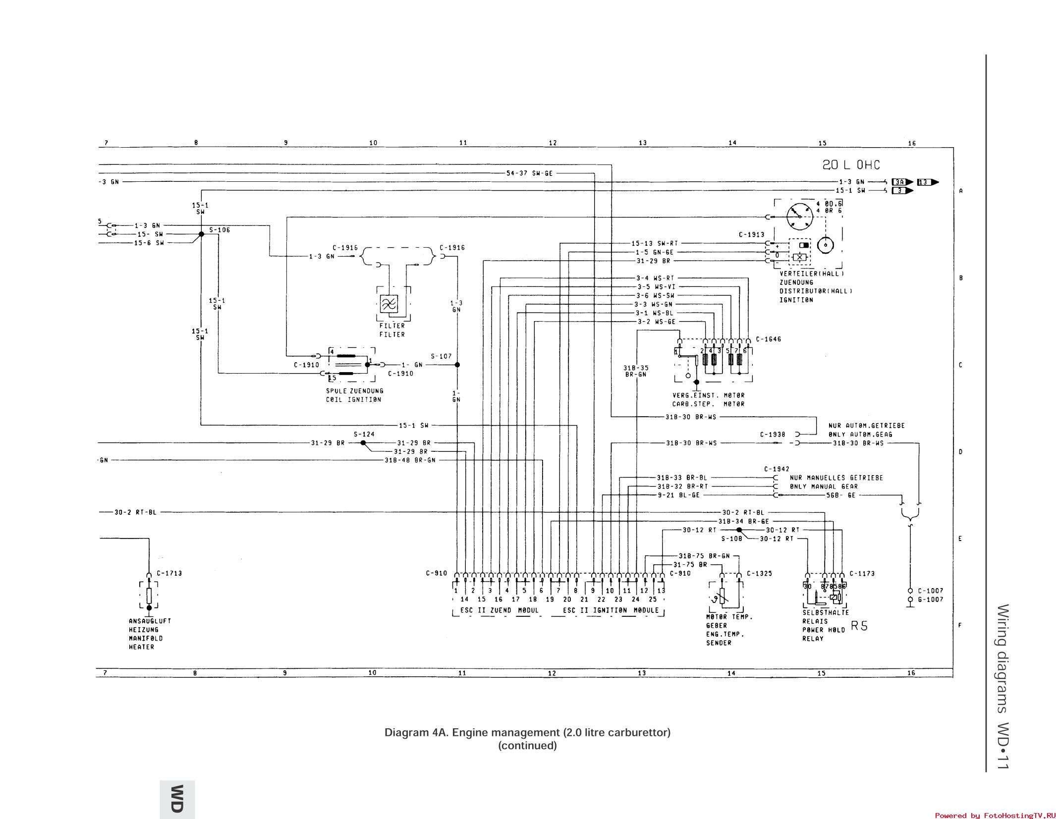
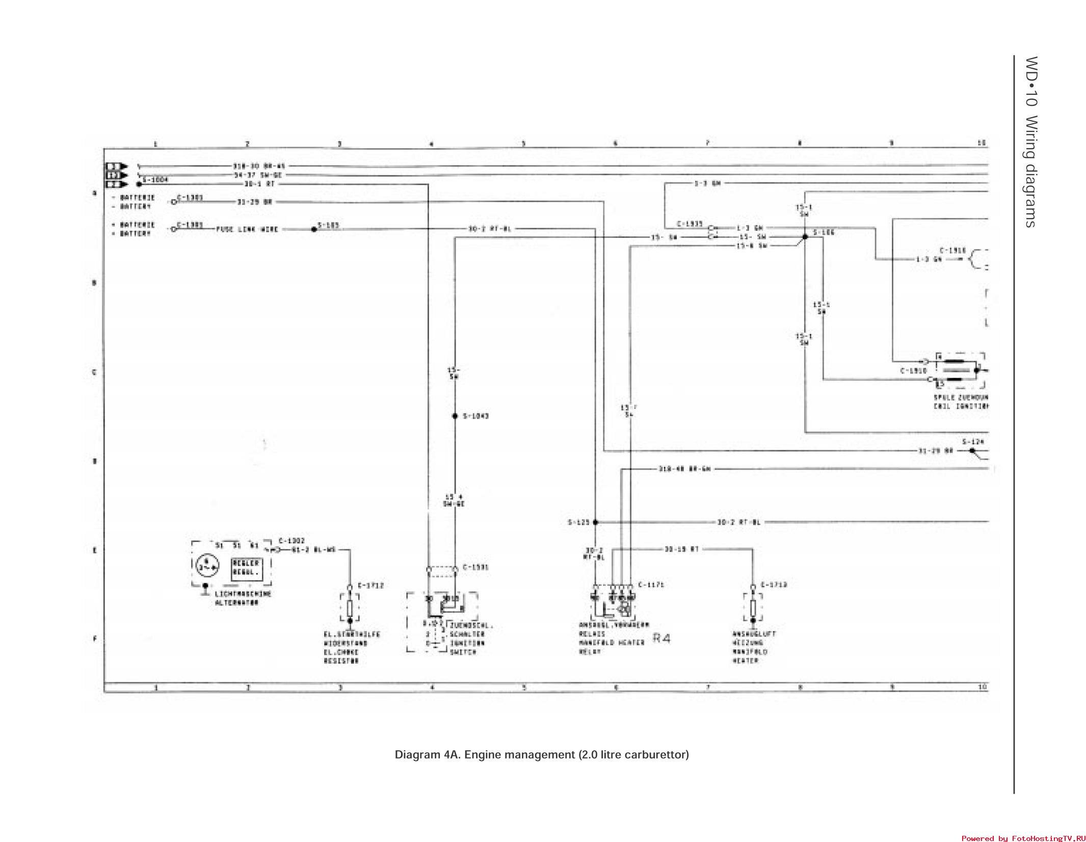
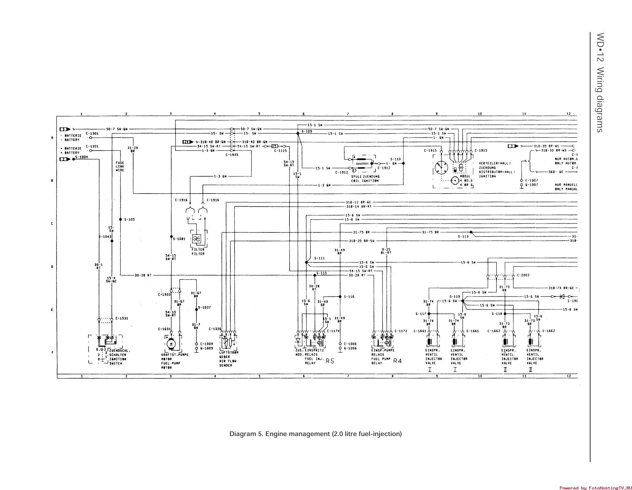
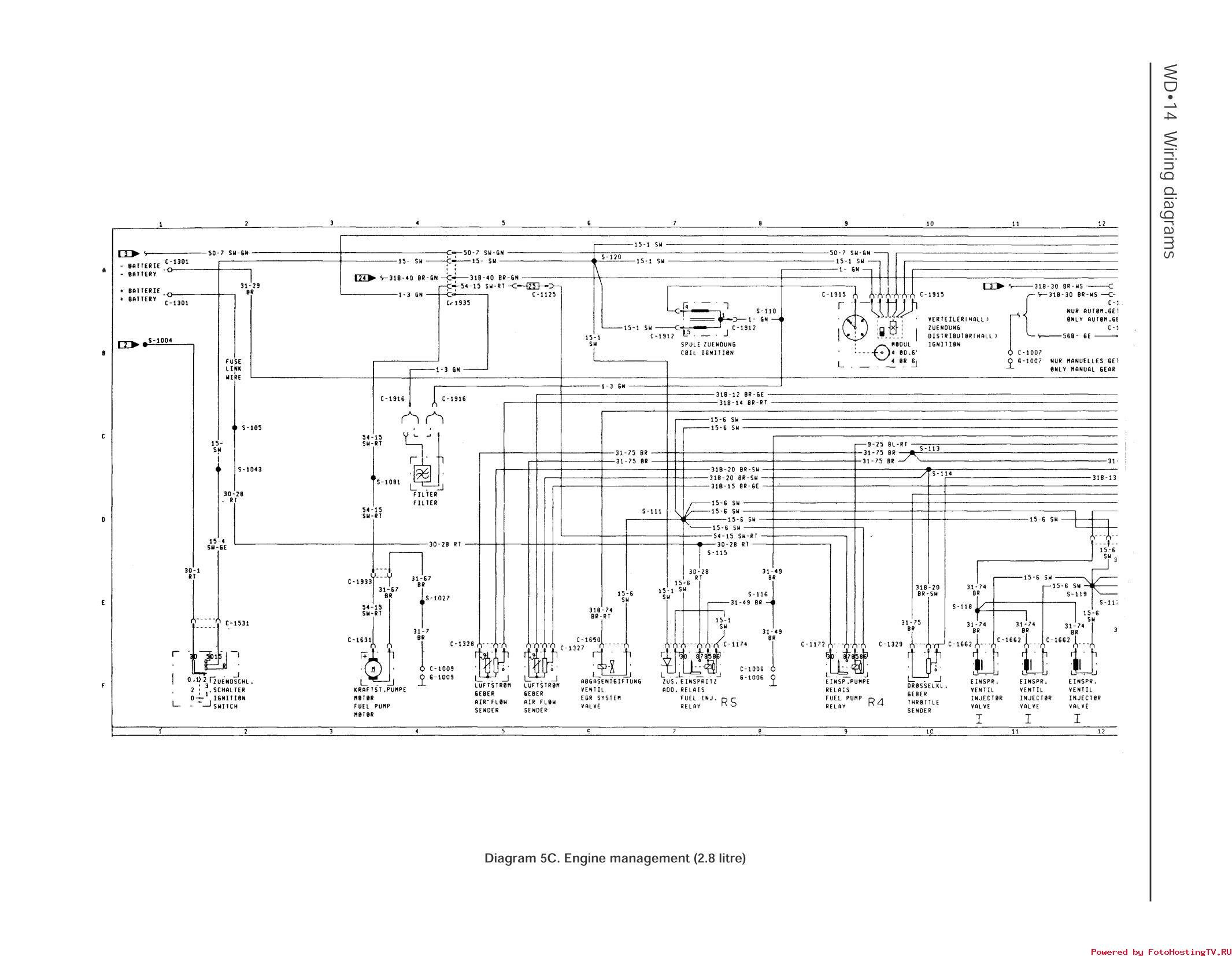
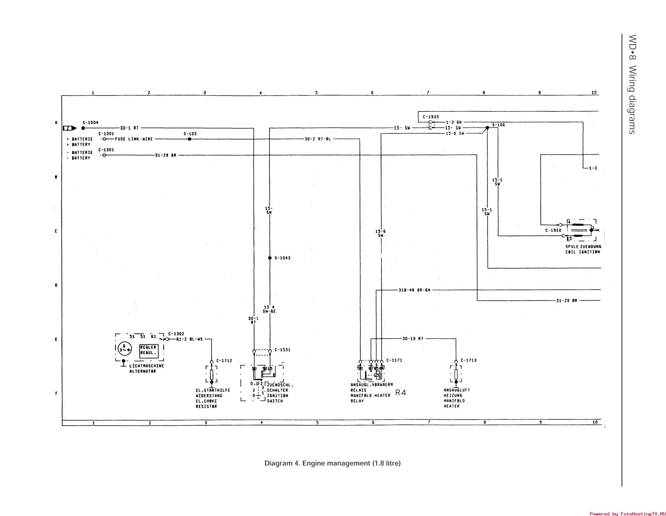
Схема управления двигателем автомобиля - 1,8 2 и 2,8 литра







РЕМОНТ АВТОЭЛЕКТРОНИКИ ЗАРЯДНЫЕ УСТРОЙСТВА ДЛЯ АКБ

|