Продолжаем рассматривать сборник электросхем автомобиля мерседес. Кликните по фото для увеличения и сохраните на компьютере.
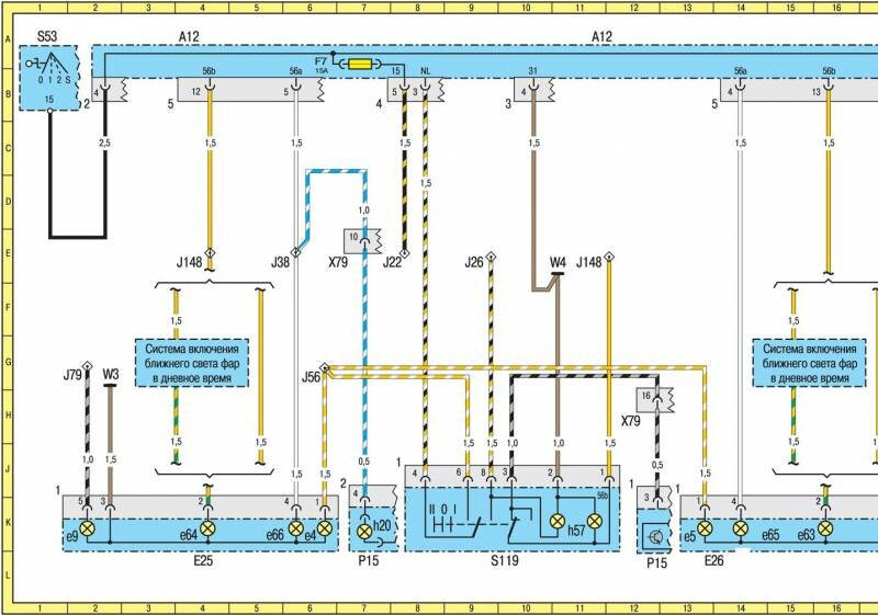
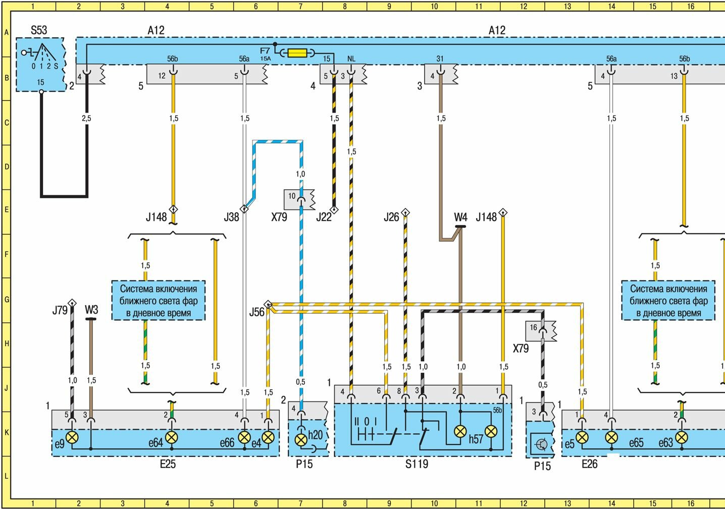
Схема системы наружного освещения мерседес





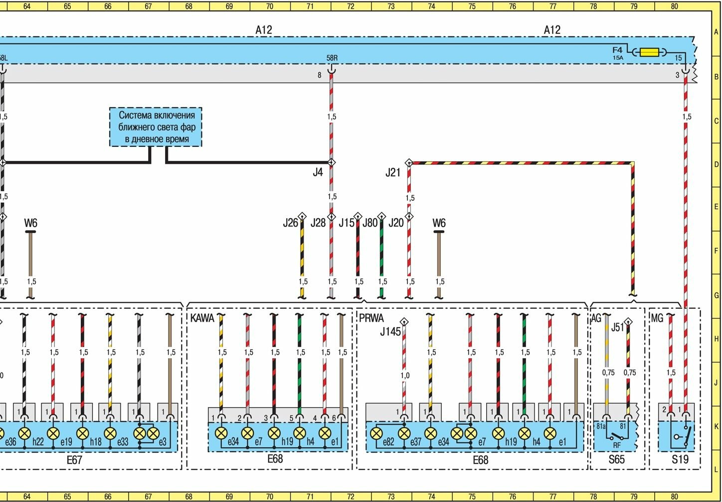
A12f4 Предохранитель ламп света заднего хода (гнездо 4) 79B
A12f5 Предохранитель ламп стоп-сигнала, обогревателей
сопел омывателя ветрового стекла (гнездо 5) 47B
A12f7 Предохранитель звукового сигнала, обогревателя
заднего стекла (гнездо 7) 8B
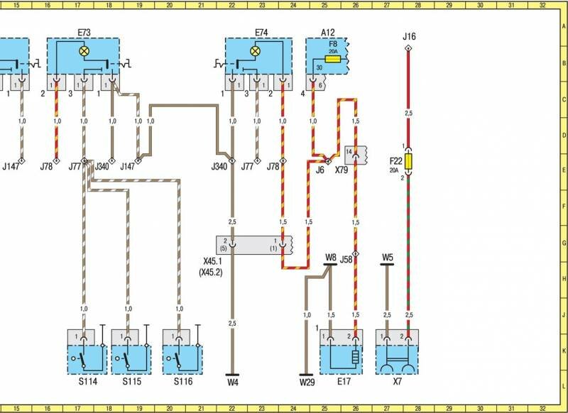
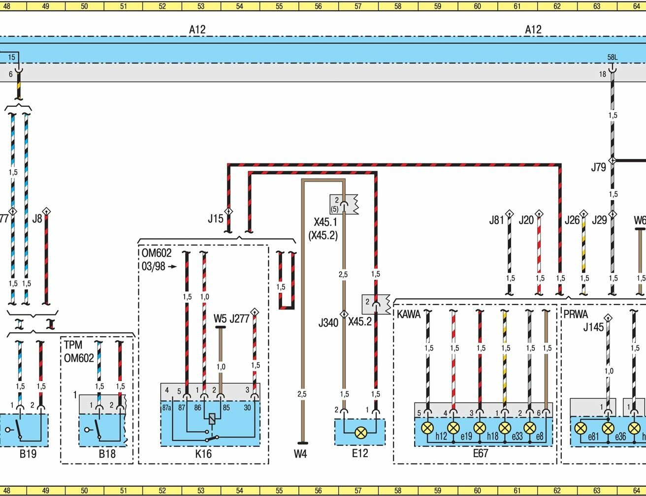
B18 4-контактный выключатель сигнала торможения
(круиз-контроль) 50L
B19 2-контактный выключатель сигнала торможения 48L
E2 Левый передний габаритный фонарь 34L
E3 Правый передний габаритный фонарь 36L
E12 Дополнительный фонарь сигнала торможения 56L
E13 Левый боковой габаритный фонарь 35L
E14 Правый боковой габаритный фонарь 38L
E15 Левый задний габаритный фонарь 39L
E16 Правый задний габаритный фонарь 40L
E25 Левая фара головного освещения 4L
E25e4 Лампа противотуманного света левой фары 6K
E25e9 Лампа габаритного света левой фары 2K
E25e64 Лампа ближнего света левой фары 4K
E25e66 Лампа дальнего света левой фары 6K
E26 Правая фара головного освещения 14L
18L
E25e5 Лампа противотуманного света правой фары 14K
E25e6 Лампа габаритного света правой фары 18K
E25e63 Лампа ближнего света правой фары 16K
E25e65 Лампа дальнего света правой фары 14K
E28 Левый передний габаритный фонарь 33L
E35 Фонарь освещения номерного знака (Post) 22L
E38 Левый передний габаритный фонарь 28L
E39 Правый передний габаритный фонарь 27L
E56 Фонарь освещения номерного знака (Post) 21L
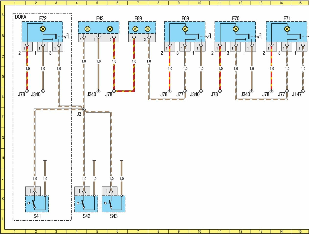
E67 Левый задний фонарь 59L
64L
E67e8 Лампа габаритного света левого заднего фонаря 61K
67K
E67e19 Лампа света заднего хода левого заднего фонаря 69K
64K
E67e33 Лампа противотуманного света левого заднего фонаря 60K
66K
E67e36 Лампа габаритного света левого заднего фонаря 63K
E67e81 Лампа освещения номерного знака левого
заднего фонаря 62K
E67h18 Лампа стоп-сигнала левого заднего фонаря 60K
65K
E67h22 Лампа указателя поворота левого заднего фонаря 58K
64K
E68 Правый задний фонарь 69L
74L
E68e1 Лампа света заднего хода правого заднего фонаря 71K
76K
E68e7 Лампа габаритного света правого заднего фонаря 69K
74K
E68e34 Лампа противотуманного света правого заднего фонаря 68K
73K
E68e37 Лампа габаритного света правого заднего фонаря 73K
E68e82 Лампа освещения номерного знака правого
заднего фонаря 72K
E68h4 Лампа указателя поворота правого заднего фонаря 70K
76K
E68h19 Лампа стоп-сигнала правого заднего фонаря 70K
75K
E75 Фонарь освещения номерного знака 23L
E76 Фонарь освещения номерного знака 25L
F70 Предохранитель (15 А) реле (вывод <D+>) 45E
J4 Вывод <58R> 18H
71D
J8 Вывод цепи ламп сигнала торможения 48E
J15 Вывод <54> 53E
71E
J16 Вывод <30> 45C
J20 Вывод лампы света заднего хода правого
заднего фонаря 61Е
73E
J21 Вывод <81a> 73D
J22 Вывод <15>, защищенный предохранителем 8E
J26 Вывод ламп противотуманного света задних фонарей 10Е
62E
70E
J28 Вывод <58R> 71Е
J29 Вывод <58L> 62Е
J33 Вывод <58> 22C
J38 Вывод <56a> 6E
J46 Вывод <58> 42C
45H
J51 Вывод <15>, защищенный предохранителем 78H
J56 Вывод ламп противотуманного света фар 6H
J79 Вывод <58L> 2H
62D
J80 Вывод указателей правого поворота 72Е
J81 Вывод указателей левого поворота 60Е
J144 Вывод ламп габаритного света 33G
J145 Вывод ламп габаритного света 39H
62H
72H
J148 Вывод <56b> 4E
12E
J277 Вывод <15> 47E
J305 Вывод <58> 22E
J340 Вывод <31> 28J
56H
P15 Комбинация приборов 7L
13L
P15h20 Контрольная лампа дальнего света фар 8K
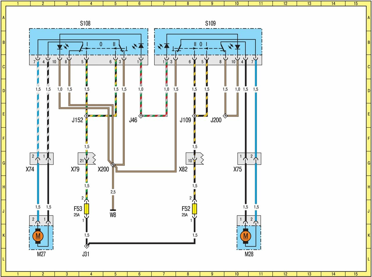
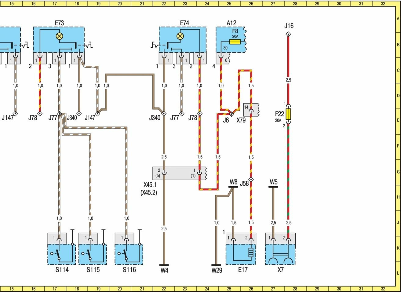
S19 Включатель ламп света заднего хода 79L
S53 Замок зажигания 1A
S65 Выключатель блокировки пуска двигателя 78L
S93 Выключатель освещения 45L
S119 Выключатель противотуманного света фар
и задних фонарей 10L
S119h57 Контрольная лампа включения ламп
противотуманного света задних фонарей 11K
W2 Соединение с <массой> в правой фаре 19H
W3 Соединение с <массой> в левой фаре 2H
W4 Соединение с <массой> на перегородке
моторного отсека 11E
30L
55L
W5 Соединение с <массой> в блоке под сиденьем 32H
35H
38H
43H
53H
W6 Соединение с <массой> ламп габаритного света
задних фонарей 22H
24C
40H
63E
74E
W8 Соединение с <массой> на кузове 46Н
X26 2-контактный разъем цепи ламп освещения
номерного знака 24E
X45.1 Разъем жгутов проводов рамы и крыши
(базовая модификация) 30H
55E
X45.2 Разъем жгутов проводов рамы и крыши (LB5/L07) 26H
29H
55F
56H
X70 Разъем проводов системы освещения на кузове 43L
X79 Разъем жгутов проводов рамы и кузова 7E
13H
42E
X82 Разъем жгутов проводов рамы и кузова 44H
X119 Разъем цепи ламп габаритного света 31L
Указатели поворота, аварийная световая сигнализация - электросхема



A12 Центральный монтажный блок 4A
12A
20A
28A
36A
A18 ЭБУ сигнализацией и противоугонной системой 13L
A21 Дополнительный ЭБУ № 1 световой сигнализацией 28L
A23 Дополнительный ЭБУ № 2 световой сигнализацией 23L
39L
E67 Левый задний фонарь 18L
19L
E67h22 Лампа левого заднего указателя поворота 18K
20K
E68 Правый задний фонарь 9L
11L
E68h4 Лампа правого заднего указателя поворота 9K
11K
F18 Предохранитель (10 А) дополнительного ЭБУ № 1
световой сигнализацией 27Н
F87 Предохранитель (7,5 А) ламп левых
указателей поворота (EDW) 13Н
F88 Предохранитель (7,5 А) ламп правых
указателей поворота (EDW) 13Н
H2 Лампа (5 Вт) правого переднего указателя поворота 6L
H3 Лампа правого переднего указателя поворота 7L
H5 Лампа (5 Вт) левого переднего указателя поворота 21L
H9 Лампа (21 Вт) правого переднего указателя поворота 6L
H10 Лампа (21 Вт) левого переднего указателя поворота 21L
H21 Лампа левого переднего указателя поворота 22L
H47 Боковой повторитель левого указателя поворота 33L
H48 Боковой повторитель правого указателя поворота 31L
H49 Дополнительный левый указатель поворота 36L
H50 Дополнительный правый указатель поворота 35L
J16 Вывод <30> 27E
J23 Вывод <AS> 38E
J24 Вывод левого указателя поворота на крыше 24H
J25 Вывод правого указателя поворота на крыше 25H
J80 Вывод правого указателя поворота 6Е
J81 Вывод левого указателя поворота 20Е
J147 Вывод соединения с <массой> указателей поворота 32H
J282 Вывод левого указателя поворота прицепа 39G
J283 Вывод правого указателя поворота прицепа 40G
J312 Вывод <30>, защищенный предохранителем 2E
P15 Комбинация приборов 4L
P15h1 Контрольная лампа указателей поворота 5K
W1 Соединение с <массой> на крыше 32F
W2 Соединение с <массой> в правой фаре 7H
W3 Соединение с <массой> в левой фаре 22H
W5 Соединение с <массой> в блоке под сиденьем 27H
W6 Соединение с <массой> задних габаритных фонарей 36H
X18 13-контактный разъем подключения
электрооборудования прицепа 40A
X46 Разъем жгутов проводов рамы и крыши
(дополнительное оборудование) 29H
X73 Разъем подключения электрооборудования прицепа 40A
X79 Разъем жгутов проводов рамы и кузова 3H
X176 Разъем подключения сигнализации и противоугонной
системы 15J
Схема освещения салона мерседес




стеклоподъемники


РЕМОНТ АВТОЭЛЕКТРОНИКИ ЗАРЯДНЫЕ УСТРОЙСТВА ДЛЯ АКБ

|